ID CP2055798

Casa individuala cu 5 camere, Campenesti

ID CP2055798

169,000 €

Casă / Vilă cu 5 camere de vânzare
Campenesti
112 mp
2023

Imobiliare Jucu vă prezintă spre vânzare o casă individuală cu 5 camere, situată în Câmpenești, într-o zonă liniștită și aerisită de case.

Caracteristici

Suprafață Utilă: 112 mp;

Teren: 426 mp.

Compartimentare

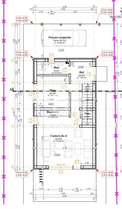
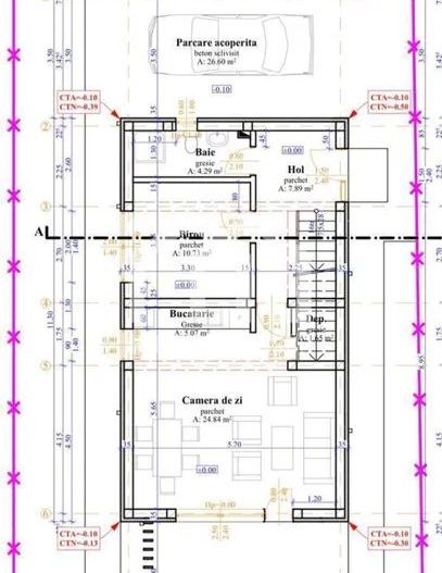
Parter:

- Living open space generos, integrat cu bucătărie;

- Dormitor;

- Baie cu fereastră pentru ventilație naturală;

- Hol spațios;

- Spațiu practic pentru depozitare.

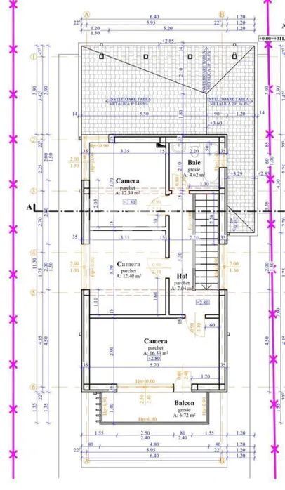
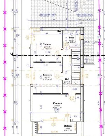
Etaj:

- Trei dormitoare luminoase și bine proporționate;

- Baie;

- Balcon.

Facilități Exterioare:

Curtea este frumos amenajată cu terasă perfectă pentru petrecerea timpului liber si parcare acoperită, asigurând protecția mașinii.

Casa se predă la stadiul de semifinisat, oferindu-vă libertatea de a adăuga propriile finisaje finale. Toate instalațiile sunt deja pe poziție, asigurând o tranziție ușoară către locuirea efectivă.

Confortul termic este asigurat de o centrală proprie, cu încălzire în pardoseală, oferindu-vă un mediu plăcut și eficient energetic.

Pentru construcția acestei case au fost folosite produse de cea mai bună calitate, garantând durabilitate și confort pe termen lung.

Pentru mai multe detalii si stabilirea unei vizionari, va asteptam cu drag!

Citește mai mult

  • Număr camere
    5
  • Dormitoare
    4
  • Număr bucătării
    1
  • Număr băi
    2
  • Număr balcoane
    1
  • Număr terase
    1
  • Număr garaje
    1
  • Număr locuri parcare
    2
  • Disponibilitate
    Imediat
  • Tip casă
    Individual
  • Suprafață utilă
    112 mp
  • Suprafață teren
    426 mp
  • An construcție
    2023
  • Construcție nouă
    Da
  • Tip construcție
    Cărămidă
  • Număr etaje clădire
    1
  • Are pod
    Da

Facilități

Apă
Canalizare
CATV
Centrală proprie
Curent
Ferestre PVC
Gaz
Geamuri tripan
Iluminat stradal
Încălzire prin pardoseală
Internet
Mijloace de transport în comun
Nemobilat
Străzi asfaltate
Telefon
Ușă intrare PVC
Vedere panoramică
Paul Pojar - Imobiliare Jucu
Paul Pojar
Director

0750421299


Solicită chiar acum o vizionare
Telefon
Sună acum Solicită vizionare
Necesare:

Site-ul nu poate funcționa corect fără aceste cookie-uri. Vezi cookie-urile

Statistică:

Strângem statistici anonime despre voi, vizitatorii unici, pentru a vă îmbunătăți experiența dumneavoastră. Vezi cookie-urile

Marketing:

Pentru a ne promova mai eficient serviciile noastre, folosim cookies pentru a vă identifica și a vă oferi proprietăți și servicii personalizate. Vezi cookie-urile

Acest site folosește cookies, află detalii. Alege ce tipuri de cookies dorești să permitem: