ID CP2901336

Casă Individuală 4 camere,114mp, teren 750mp, zona Parc,Jucu de Mijloc

ID CP2901336

215,000 € (negociabil)

Casă / Vilă cu 4 camere de vânzare
Jucu de Mijloc
114 mp
2025

Imobiliare Jucu vă prezintă spre vânzare o casa individuala cu 4 camere, situată în localitatea Jucu de Mijloc in zona Parcului.

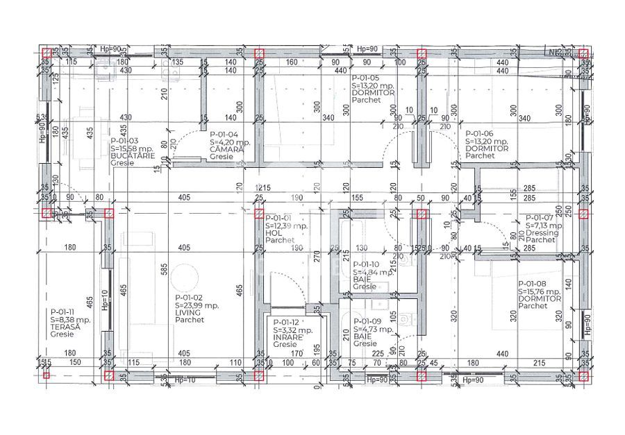
Proprietatea este construita pe un nivel cu o suprafata utila de 114mp si un teren de 750mp

Compartimentarea este gandita astfel:

- 3 dormitoare

- 1 living

- 1 bucatarie

- 2 bai dintre care una cu geam

- 1 camara

- 1 dressing

- 1 terasa de aprox 8mp

Confortul termic este asigurat de centrala termica proprie prin incalzire in pardoseala si de izolatia exterioara a imobilului.

Casa se vinde la stadiul de finisat

Proprietatea se afla intr-o zona linistita oferind noilor proprietari confortul mult dorit.

Vanzarea se face de pe persoana fizica iar pretul nu este purtator de TVA.

La momentul actual sunt disponibile doua proprietati!

Avantaje:

- scoli, gradinita,cresa,magazine, statii de autobuz etc.

- acces rapid la principalele arterele de circulație

- 2 locuri de parcare

📞 Pentru mai multe detalii sau pentru a programa o vizionare, nu ezitați să ne contactați!

“Știi ce cumperi, știi cu vinzi.”

Citește mai mult

  • Număr camere
    4
  • Dormitoare
    3
  • Număr bucătării
    1
  • Număr băi
    2
  • Geam la baie
    Da
  • Număr terase
    2
  • Număr locuri parcare
    2
  • Disponibilitate
    Imediat
  • Tip casă
    Individual
  • Stare interior
    Semifinisat
  • Anul finisării
    2025
  • Suprafață utilă
    114 mp
  • Suprafață construită
    150 mp
  • Suprafață teren
    750 mp
  • Suprafață curte
    600 mp
  • Suprafață terasă
    8 mp
  • Acoperiș
    Țiglă
  • Stadiu construcție
    Finisat
  • An construcție
    2025
  • Construcție nouă
    Da
  • Tip construcție
    BCA
  • Are pod
    Da

Facilități

Acoperiș
Apă
Apometre
Bucătărie deschisă
Canalizare
CATV
Centrală proprie
Contor electric
Contor gaz
Curent
Curte
Debara
Faianță
Gaz
Geamuri termopan
Grădină proprie
Gresie
Iluminat stradal
Încălzire prin pardoseală
Internet
Izolație exterioară
Mijloace de transport în comun
Parcare deschisă
Parchet laminat
Străzi de pământ
Telefon
Ușă intrare PVC
Uși interior lemn
Vopsea lavabilă
Alexandru Florin - Imobiliare Jucu
Alexandru Florin
Expert Imobiliar - Case, Apartamente & Ansambluri Rezidențiale

0750487047


Solicită chiar acum o vizionare
Telefon
Sună acum Solicită vizionare
Necesare:

Site-ul nu poate funcționa corect fără aceste cookie-uri. Vezi cookie-urile

Statistică:

Strângem statistici anonime despre voi, vizitatorii unici, pentru a vă îmbunătăți experiența dumneavoastră. Vezi cookie-urile

Marketing:

Pentru a ne promova mai eficient serviciile noastre, folosim cookies pentru a vă identifica și a vă oferi proprietăți și servicii personalizate. Vezi cookie-urile

Acest site folosește cookies, află detalii. Alege ce tipuri de cookies dorești să permitem: