ID CP2152527

Teren intravilan construcție casă individuală 902 mp - Jucu de Sus

ID CP2152527

43,000 € (negociabil)

Teren de 902 mp de vânzare
Jucu de Sus
902 mp

Teren de vânzare intravilan, în faza de autorizare cu Plan Urbanistic Zonal.

Terenul este situat în localitatea Jucu de Sus, pe o strada retrasa, intr-o zona liniștită, cu acces imediat în drumul județean, care străbate comuna.

Străzile sunt asfaltate și toate utilitățile se afla la limita perimetrului propus spre autorizare(apa-canal, electricita, gaz, internet, iluminat stradal)

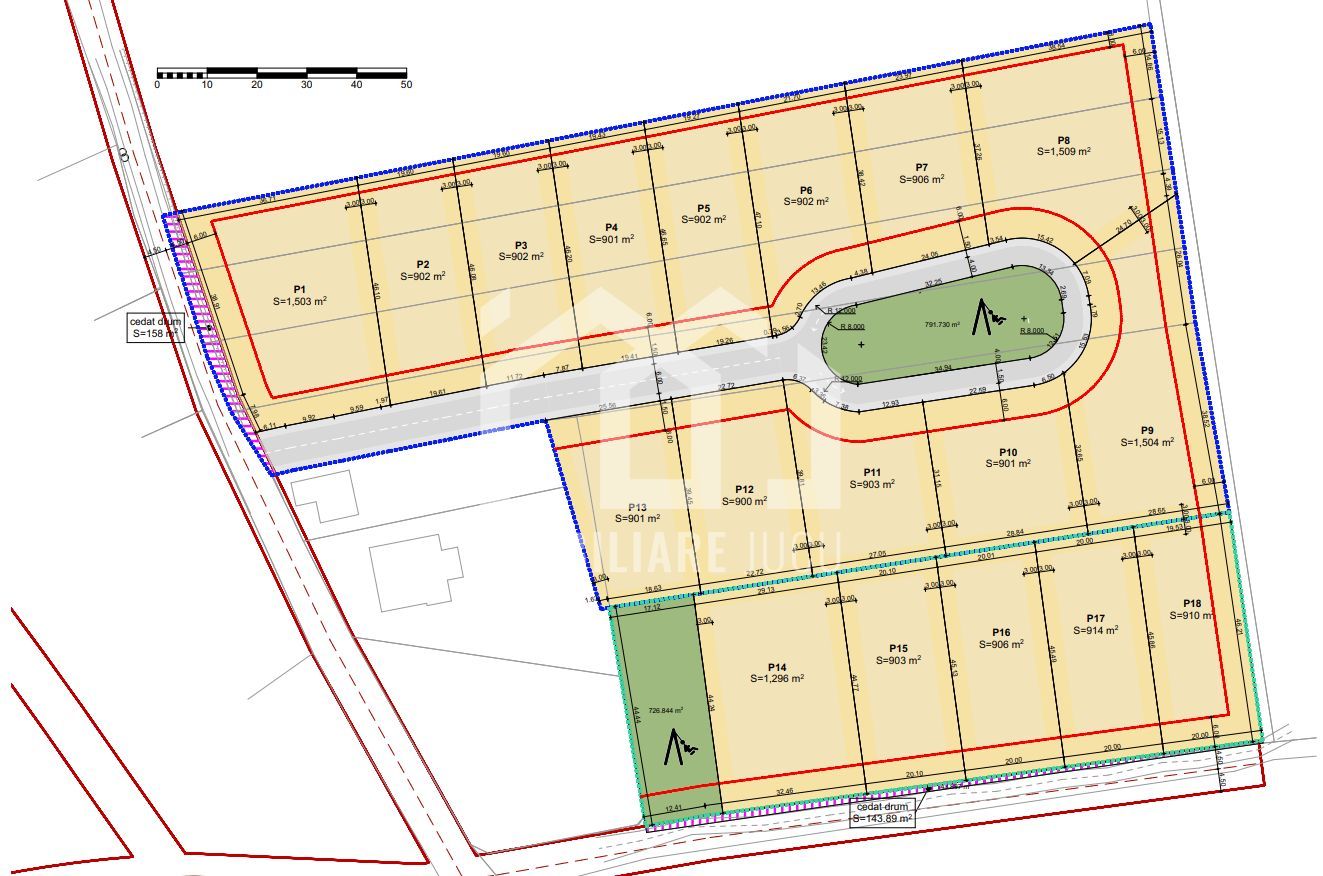
Terenul face parte dintr-un ansamblu de 6 parcele individuale de aproximativ 900 mp, si o parcela de 1500 mp, cu drum privat, cum reiese din sistematizarea din imagini.

Terenul este in plan drept, situat intr-o zona retrasa si linistita din Jucu de Sus, in apropiere:

Parcul George Baritiu,

Casa memoriala George Baritiu

Caminul Cultural

la 5 minute se regasesc pizzerie, magazine, ATM bancar, farmacie, baza sportiva Jucu, centrul de comuna cu :

- gradinite

- scoala

- primarie

- SMURD

etc.

Repere:

* 500 m pana în centrul de comuna, 2 km pana la primărie, 20 km din centrul orașului Cluj, 15 km pana la aeroportul internațional.

* 5 km pana la parcul industrial Tetarom 3, pe platforma căruia se afla marii operatori Bosch, Delonghi, Ecolor, DB Schenker, Losan, Impro etc.

In apropiere exista magazine, cabinete medicale și stomatologice, creșă/grădiniță sau școală, baze sportive, parcuri și zone recreaționale.

Pentru detalii suplimentare si stabilirea unei vizionari contactati-ne cu incredere!

Citește mai mult

  • Tip teren
    Construcții
  • Suprafață teren
    902 mp
  • Front stradal
    19.61 m
  • Număr fronturi stradale
    1
  • Deschidere la
    Șosea
  • Clasificare
    Intravilan
  • Disponibilitate
    Imediat
  • PUZ Aprobat
    Da

Facilități

Acces auto
Iluminat stradal
Mijloace de transport în comun
Oportunitate de investiții
Străzi asfaltate
Utilități în zonă
Alex Oltean - Imobiliare Jucu
Alex Oltean
Expert Imobiliar - Terenuri

0743434389


Solicită chiar acum o vizionare
Telefon
Sună acum Solicită vizionare
Necesare:

Site-ul nu poate funcționa corect fără aceste cookie-uri. Vezi cookie-urile

Statistică:

Strângem statistici anonime despre voi, vizitatorii unici, pentru a vă îmbunătăți experiența dumneavoastră. Vezi cookie-urile

Marketing:

Pentru a ne promova mai eficient serviciile noastre, folosim cookies pentru a vă identifica și a vă oferi proprietăți și servicii personalizate. Vezi cookie-urile

Acest site folosește cookies, află detalii. Alege ce tipuri de cookies dorești să permitem: