ID CP2983754

Proiect 8 case autorizate Jucu | 8000 mp | 2 accese | 60€/mp

ID CP2983754

480,000 € (negociabil) + 21% TVA

Teren de 8,000 mp de vânzare
Jucu de Mijloc
8,000 mp

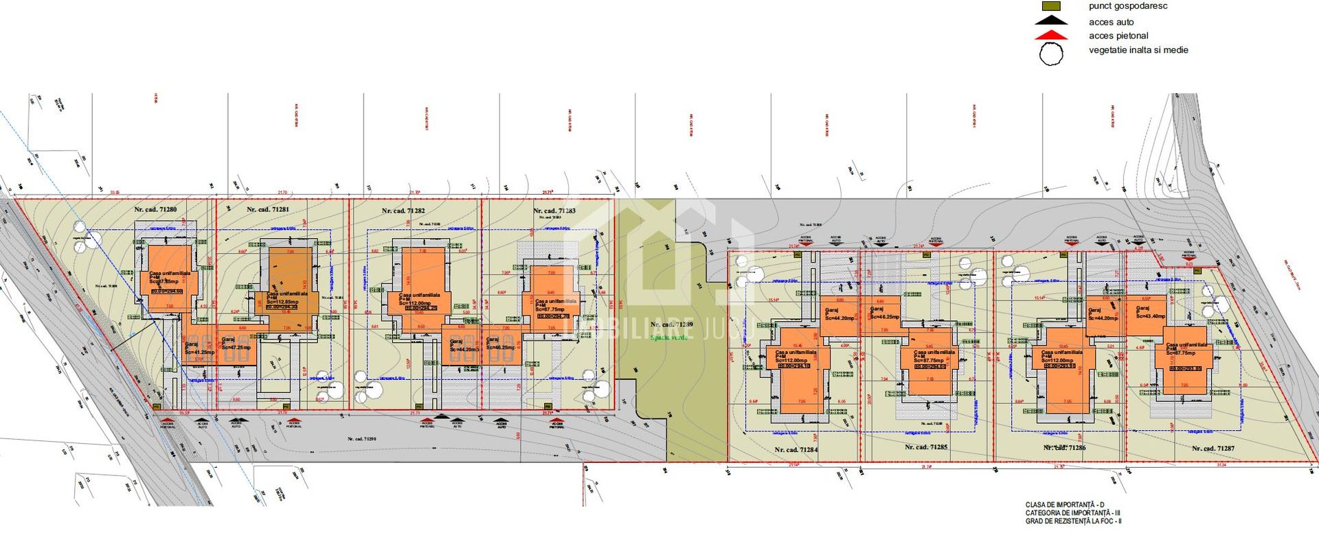
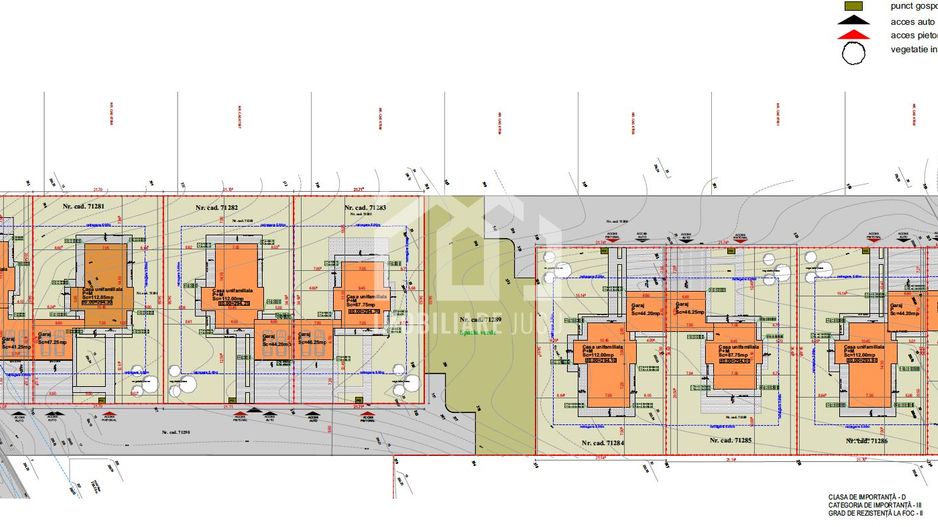
Oportunitate rară pentru dezvoltatori: proiect rezidențial de 8 case autorizate, situat în Jucu de Mijloc – zona străzii Aviatorilor, cartier nou, în plină dezvoltare.

Terenul are o suprafață totală de 8.000 mp și este organizat eficient pentru dezvoltare, incluzând:

8 unități locative (cuplate 2 câte 2, prin garaj)

loturi individuale de cca. 750 mp / unitate

drum privat cu lățime de 9 m

spațiu verde central în interiorul ansamblului

acces din două străzi (dublu front)

Casele sunt prevăzute cu regim de înălțime P + M + garaj, cu o arhitectură optimă pentru cererea actuală din piață.

👉 Avantaje majore:

Autorizație de construire obținută

Toate utilitățile la limita proprietății

Teren în plan drept (costuri reduse de execuție)

Proiect împărțit eficient, ușor de etapizat

Zonă premium, cu cerere ridicată

💰 PREȚ

60 euro/mp + TVA

Se vinde de pe firmă.

🔄 FLEXIBILITATE

Proiectul poate fi achiziționat:

integral (8 unități)

pe etape: 2 / 4 case + cotă parte din drum și spațiu verde

📈 Proiectul este ideal pentru dezvoltatori care doresc:

start rapid (fără blocaje urbanistice)

optimizarea investiției prin execuție etapizată

produs final adaptat cererii reale din zonă

Documentația completă, planuri și scenarii de dezvoltare disponibile la cerere.

Pentru detalii și vizionare → 0750 421 299

Citește mai mult

  • Tip teren
    Construcții
  • Suprafață teren
    8,000 mp
  • Clasificare
    Intravilan
  • Valoare incidență
    85.71
  • Disponibilitate
    Imediat
  • CUT
    0.7
  • POT (%)
    30.0
  • Autorizație de construcție
    Da
  • Certificat de urbanism
    Da

Facilități

Apă
Canalizare
Curent
Gaz
Iluminat stradal
Mijloace de transport în comun
Străzi asfaltate
Paul Pojar - Imobiliare Jucu
Paul Pojar
Director

0750421299


Solicită chiar acum o vizionare
Telefon
Sună acum Solicită vizionare
Necesare:

Site-ul nu poate funcționa corect fără aceste cookie-uri. Vezi cookie-urile

Statistică:

Strângem statistici anonime despre voi, vizitatorii unici, pentru a vă îmbunătăți experiența dumneavoastră. Vezi cookie-urile

Marketing:

Pentru a ne promova mai eficient serviciile noastre, folosim cookies pentru a vă identifica și a vă oferi proprietăți și servicii personalizate. Vezi cookie-urile

Acest site folosește cookies, află detalii. Alege ce tipuri de cookies dorești să permitem: