ID CP2663535

Teren intravilan 4.700 mp - în Jucu de Mijloc

ID CP2663535

164,500 € (negociabil)

Teren de 4,700 mp de vânzare
Jucu de Mijloc
4,700 mp

Vă propunem spre vânzare un teren intravilan situat în Jucu de Mijloc, în zona străzii Aviatorilor – un sector în plină dezvoltare, destinat construcțiilor rezidențiale, cu acces rapid din DN1 și departe de calea ferată. Zona este exclusiv de case, cu un caracter aerisit și un ritm de urbanizare echilibrat.

📐 Suprafață totală: 4.700 mp

📏 Lățime teren (interior): 33 m

🚪 Front la drum de acces: 9 m (drum planificat cu lățime de 9 m)

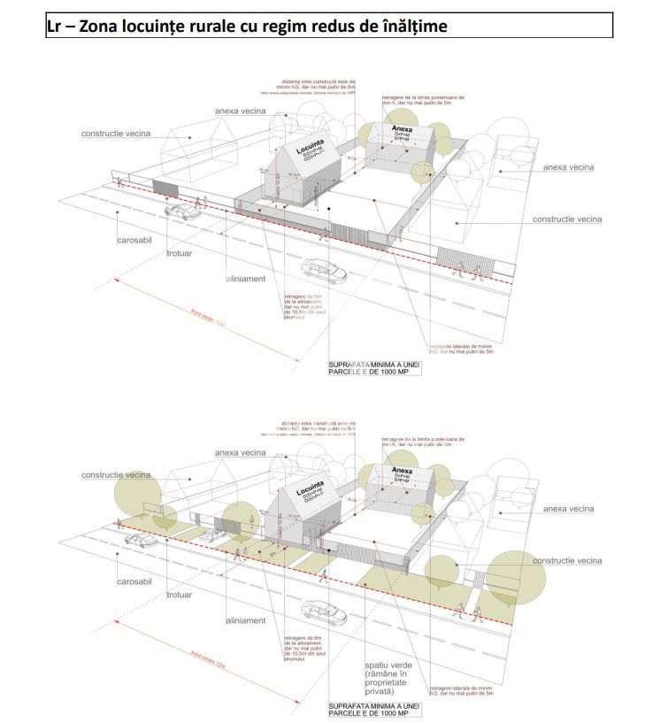
📌 Încadrare urbanistică: UTR R_Lr – necesită PUZ pentru construire

📈 POT max: 30%

📈 CUT max: 0.7

🔌 Utilitățile sunt în zonă

📍 Accesul la parcelă se va realiza printr-un drum de 9 metri lățime

🏡 Poziționat într-un cartier de case, într-o zonă liniștită cu acces facil spre infrastructura principală

Terenul se pretează pentru dezvoltatori care urmăresc parcelarea în loturi rezidențiale, pentru locuințe individuale sau locuințe cuplate, în conformitate cu reglementările urbanistice.

Pentru detalii suplimentare sau vizionare, nu ezitați să ne contactați.

Citește mai mult

  • Tip teren
    Construcții
  • Suprafață teren
    4,700 mp
  • Front stradal
    9.0 m
  • Număr fronturi stradale
    1
  • Deschidere la
    Șosea
  • Lățime drum acces
    9.0 m
  • Clasificare
    Intravilan
  • Valoare incidență
    50.0
  • Disponibilitate
    Imediat
  • CUT
    0.7
  • POT (%)
    30.0

Facilități

Acces auto
Apă
Canalizare
Curent
Gaz
Iluminat stradal
Mijloace de transport în comun
Oportunitate de investiții
Parcelabil
Străzi asfaltate
Alex Oltean - Imobiliare Jucu
Alex Oltean
Expert Imobiliar - Terenuri

0743434389


Solicită chiar acum o vizionare
Telefon
Sună acum Solicită vizionare
Necesare:

Site-ul nu poate funcționa corect fără aceste cookie-uri. Vezi cookie-urile

Statistică:

Strângem statistici anonime despre voi, vizitatorii unici, pentru a vă îmbunătăți experiența dumneavoastră. Vezi cookie-urile

Marketing:

Pentru a ne promova mai eficient serviciile noastre, folosim cookies pentru a vă identifica și a vă oferi proprietăți și servicii personalizate. Vezi cookie-urile

Acest site folosește cookies, află detalii. Alege ce tipuri de cookies dorești să permitem: