ID CP2662614

Teren Intravilan 3.400 mp – Jucu de Mijloc

ID CP2662614

85,000 €

Teren de 3,400 mp de vânzare
Jucu de Mijloc
3,400 mp

📍 Localizare: Jucu de Mijloc

📐 Suprafață totală: 3.400 mp

📏 Front stradal: 18 metri, cu deschidere la două străzi

🔌 Utilități: gaz, curent, apă și canalizare în apropiere

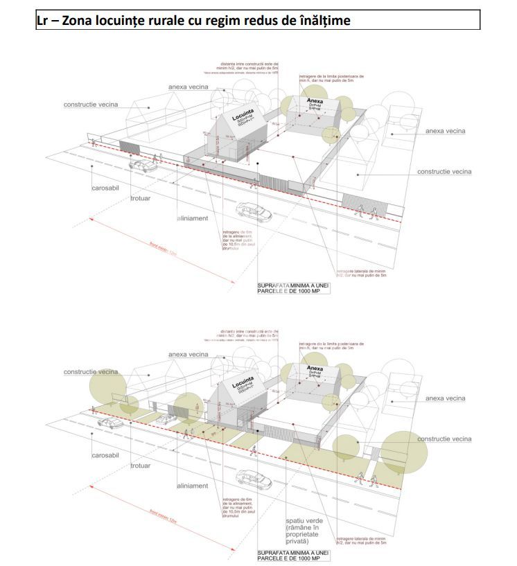
🗂 Încadrare urbanistică:

Parțial UTR Lr – zonă de locuințe rurale (POT max. 30%, CUT max. 0.7) – construibil fără PUZ

Parțial UTR R_Lr – zonă rezidențială (POT max. 30%, CUT max. 0.7) – necesită PUZ

✅ Avantaje cheie:

Acces facil din două direcții, potrivit pentru proiecte cu mai multe unități locative sau parcelare.

Partea din față a terenului este construibilă imediat, fără PUZ, oferind posibilitatea demarării rapide a unei construcții.

Toate utilitățile sunt la câțiva metri de teren, reducând costurile de racordare.

Zonă în plină dezvoltare, cu construcții noi în vecinătate.

💡 Potrivit pentru: locuință individuală, duplexuri sau dezvoltare rezidențială în etape.

📞 Contactează-ne pentru detalii și vizionare!

Citește mai mult

  • Tip teren
    Construcții
  • Suprafață teren
    3,400 mp
  • Front stradal
    18.0 m
  • Număr fronturi stradale
    2
  • Deschidere la
    Șosea
  • Clasificare
    Intravilan
  • Valoare incidență
    35.71
  • Disponibilitate
    Imediat
  • CUT
    0.7
  • POT (%)
    30.0

Facilități

Acces auto
Apă
Canalizare
Curent
Gaz
Iluminat stradal
La șosea
Mijloace de transport în comun
Oportunitate de investiții
Parcelabil
Străzi asfaltate
Alex Oltean - Imobiliare Jucu
Alex Oltean
Expert Imobiliar - Terenuri

0743434389


Solicită chiar acum o vizionare
Telefon
Sună acum Solicită vizionare
Necesare:

Site-ul nu poate funcționa corect fără aceste cookie-uri. Vezi cookie-urile

Statistică:

Strângem statistici anonime despre voi, vizitatorii unici, pentru a vă îmbunătăți experiența dumneavoastră. Vezi cookie-urile

Marketing:

Pentru a ne promova mai eficient serviciile noastre, folosim cookies pentru a vă identifica și a vă oferi proprietăți și servicii personalizate. Vezi cookie-urile

Acest site folosește cookies, află detalii. Alege ce tipuri de cookies dorești să permitem: