ID CP2238776

Teren intravilan construibil 1.400 mp | Jucu de Mijloc |

ID CP2238776

75,000 € (negociabil)

Teren de 1,400 mp de vânzare
Jucu de Mijloc
1,400 mp

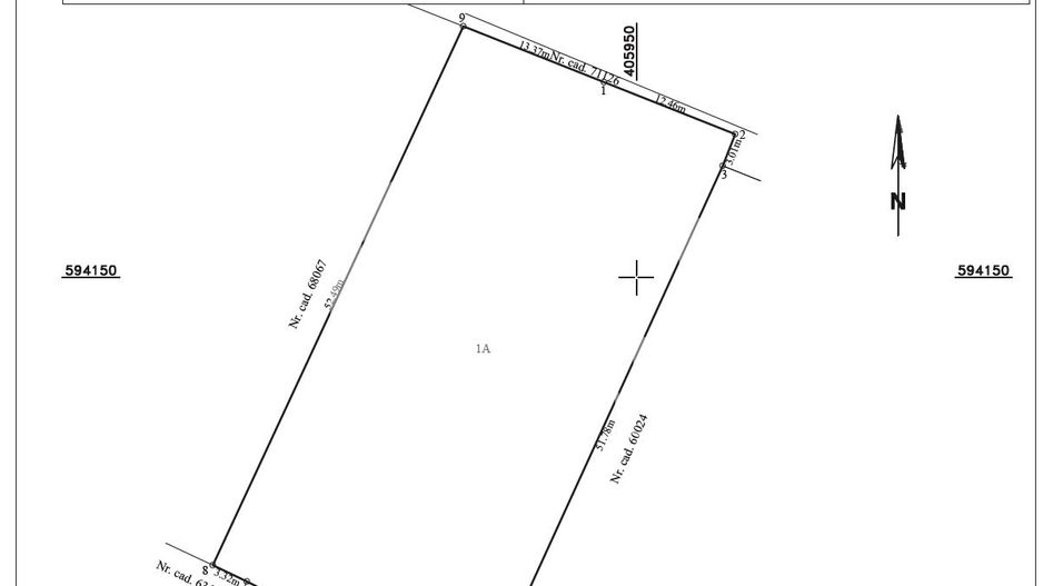
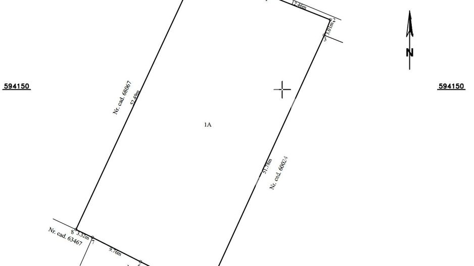
Oferim spre vânzare un teren intravilan în suprafață de 1.400 mp, cu un front stradal de 25 ml, ideal pentru construcția unei case individuale sau, prin realizarea unui PUD, a două unități locative tip duplex.

📍 Localizare: Jucu de Mijloc – într-un cartier nou, în plină dezvoltare, format în mare parte din familii tinere.

Avantaje principale:

Teren drept, ușor de construit

Acces facil, poziționat pe stradă secundară – mai multă liniște și intimitate

Zonă complet nouă, cu infrastructură în dezvoltare

Strada în curs de amenajare, asfaltare în viitorul apropiat

Toate utilitățile asigurate (în zonă)

Zonă în dezvoltare accelerată:

Parcuri și spații verzi în apropiere

Baze sportive și zone de recreere

La aproximativ 500 m se construiește o creșă modernă

Acces rapid către drumul principal și facilitățile locale

Regim urbanistic:

Intravilan

UTR – zonă rezidențială, locuințe individuale

Posibilitate construcție casă individuală sau duplex (cu PUD)

Teren liber de sarcini

💶 Preț ajustat pentru 2026: 54 €/mp (negociabil)

Comision 0% pentru cumpărător

Dacă îți dorești să construiești într-o zonă nouă, liniștită și în plină dezvoltare, această proprietate reprezintă o oportunitate excelentă.

📞 Pentru mai multe informații sau programarea unei vizionări, te așteptăm să ne contactezi.

Știi ce cumperi. Știi cui vinzi.

Citește mai mult

  • Tip teren
    Construcții
  • Suprafață teren
    1,400 mp
  • Front stradal
    25.0 m
  • Număr fronturi stradale
    1
  • Deschidere la
    Drum principal
  • Clasificare
    Intravilan
  • Disponibilitate
    Imediat
  • Certificat de urbanism
    Da

Facilități

Apă
Canalizare
Curent
Gaz
Iluminat stradal
Mijloace de transport în comun
Străzi asfaltate
Străzi de pământ
Paul Pojar - Imobiliare Jucu
Paul Pojar
Director

0750421299


Solicită chiar acum o vizionare
Telefon
Sună acum Solicită vizionare
Necesare:

Site-ul nu poate funcționa corect fără aceste cookie-uri. Vezi cookie-urile

Statistică:

Strângem statistici anonime despre voi, vizitatorii unici, pentru a vă îmbunătăți experiența dumneavoastră. Vezi cookie-urile

Marketing:

Pentru a ne promova mai eficient serviciile noastre, folosim cookies pentru a vă identifica și a vă oferi proprietăți și servicii personalizate. Vezi cookie-urile

Acest site folosește cookies, află detalii. Alege ce tipuri de cookies dorești să permitem: