ID CP3036754

Spatiu comercial de inchiriat, Parcare, Apahida-Sannicoara

ID CP3036754

1,194 € (negociabil) + 21% TVA

Spațiu comercial de vânzare
Sannicoara
119.4 mp
2024

ImobiliareJucu va propune spre inchiriere uns pațiu comercial situate in localitatea Sannicoara intr-o zona de maxim interes

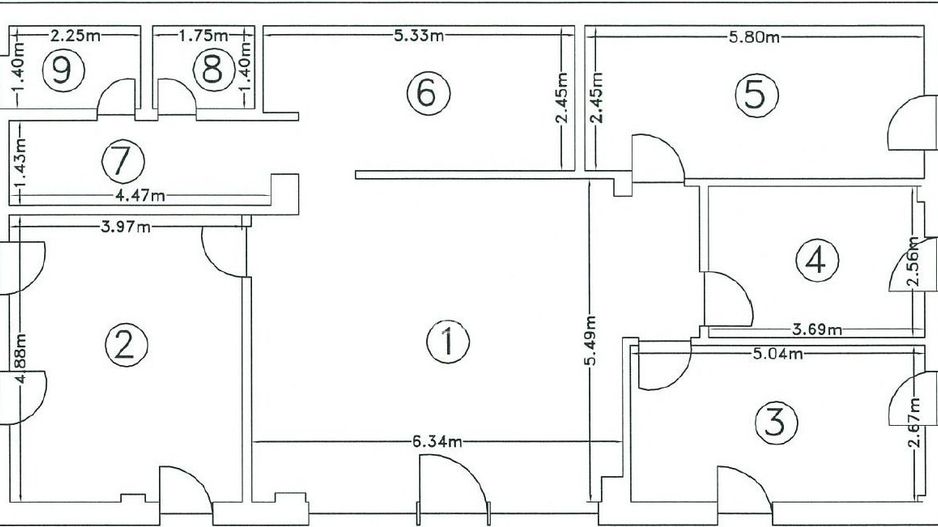
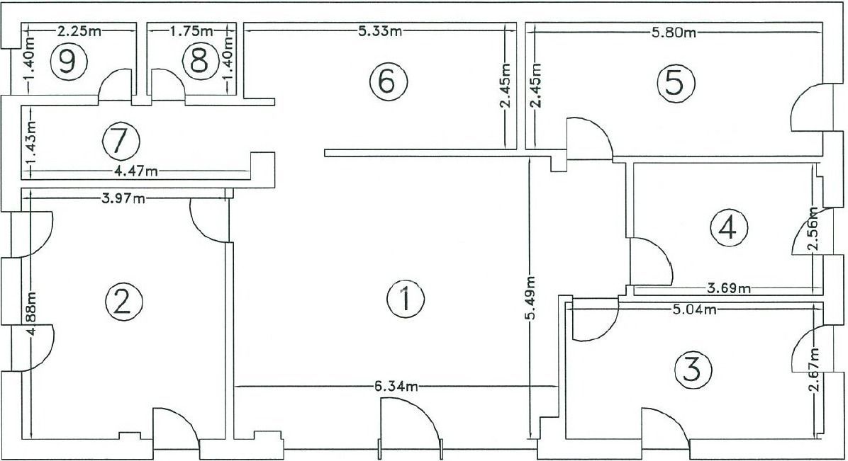
Spatiul este ideal pentru showroom, magazin, birouri sau activități de prestări servicii, avand o suprafață generoasă, de 119.4mp, open-space, cu posibilitate de compartimentare

Fațadă vitrată vizibilitate excelentă din stradă

Acces facil pietonal și auto

Utilități separate, un grup sanitar etc.

Zonă cu trafic intens, aproape de mijloace de transport, centre de afaceri și rezidențiale

Potrivit pentru activități comerciale.

Disponibil imediat, contract pe termen lung.

LA PRETUL AFISAT SE ADAUGA UN TVA DE 21%!

Atasat pozelor din anunt se poate vedea o idee de compartimentare

Stii ce cumperi, stii cui vinzi!

Citește mai mult

  • Tip imobil
    Bloc de apart.
  • Trafic pietonal
    Intens
  • Etaj
    Parter
  • Număr camere
    1
  • Număr băi
    2
  • Număr bucătării
    1
  • Suprafață construită
    129 mp
  • Suprafață utilă
    119.4 mp
  • Front stradal
    15.0 m
  • Vitrină (m)
    5.0 m
  • Înălțime interioară
    2.7
  • Disponibilitate
    Imediat
  • Compartimentare spațiu
    Open space
  • Număr locuri parcare
    2
  • An construcție
    2024
  • Construcție nouă
    Da
  • Număr etaje clădire
    3
  • Număr etaje retrase
    1

Facilități

Acces pentru persoane cu dizabilități
Afișare logo pe clădire
Apă
Canalizare
Centrală termică
Contorizare separată
Curent
Gaz
Parcare deschisă
Alexandru Florin - Imobiliare Jucu
Alexandru Florin
Expert Imobiliar - Case, Apartamente & Ansambluri Rezidențiale

0750487047


Solicită chiar acum o vizionare
Telefon
Sună acum Solicită vizionare
Necesare:

Site-ul nu poate funcționa corect fără aceste cookie-uri. Vezi cookie-urile

Statistică:

Strângem statistici anonime despre voi, vizitatorii unici, pentru a vă îmbunătăți experiența dumneavoastră. Vezi cookie-urile

Marketing:

Pentru a ne promova mai eficient serviciile noastre, folosim cookies pentru a vă identifica și a vă oferi proprietăți și servicii personalizate. Vezi cookie-urile

Acest site folosește cookies, află detalii. Alege ce tipuri de cookies dorești să permitem: